- Motiv
-
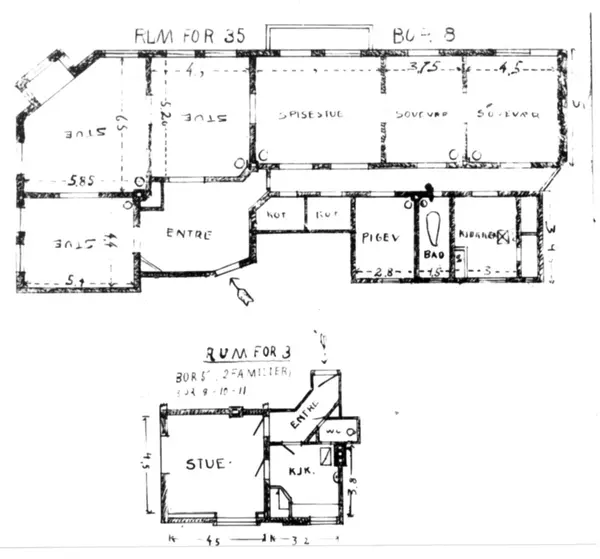
Grunnplan, leiligheter. Skisse av rominndeling som sammenlikning mellom en 6-roms og en 1-roms leilighet. Fra boliginspektør Nanna Brochs boligundersøkelser i Oslo 1920-årene.
- Datering
- Avbildet sted
- Emneord
- Bildenummer
-
NF.08636-003
- Historikk
-
NANNA BROCH (1879-1971) ble i 1919 ansatt ved den nyopprettede "avdeling for kvinnelig boligtilsyn" i Kristiania helseråd som èn av fire "boliginspektricer", fram til 1945. Oppgaven var dels å "påvirke leieboernes renlighetssans og veilede dem i en fornuftig bruk av leligheten", dels å få gårdeierne til å bedre vedlikeholdet av gårdene. Boligundersøkelser (de undersøkte 1919-20 ca. 5500 leiligheter) avdekket østkantens elendige boligforhold. Ikke minst erfaringene fra arbeidet la grunnlaget for hennes sterke engasjemenet i boligsaken. Hun holdt i 1920-årene en rekke foredrag, skrev artikler om boligsaken og sto for opprettelsen av Østkantutstillingen, en idealistisk virksomhet som fant sted først på Schous plass på nedre Grünerløkka, deretter på Ankertorget i Oslo, fra 1923 fram til 1956. Her arrangerte hun utstillinger, holdt kurs og foredrag over ulike sosiale og politiske spørsmål.
- Permalenke
- Eierinstitusjon
-
Norsk Folkemuseum
- Arkiv/Samling
-
NF
Dette bildet er en utskrift fra nettstedet oslobilder.no. Høykvalitetskopi kan bestilles fra oslobilder.no, eller ved å kontakte eierinstitusjonen.
Korrekt referanse til dette bildet er "Fotograf: . Norsk Folkemuseum/NF.08636-003"
Dette bildet eies av Norsk Folkemuseum
Vi arbeider kontinuerlig med digitalisering og katalogisering av samlingene. Vi tar forbehold om feil og mangler, og vi setter pris på tilbakemeldinger og utfyllende opplysninger.